Beschrijving

Per 01-12-2025 komt dit prachtige appartement beschikbaar aan de J.C. Kapteynlaan 11-2 in Groningen.

Locatie
Dit appartement is gelegen in de Korrewegwijk. Het centrum van de stad is op slechts 5 minuten fietsafstand, waar je kunt genieten van de gezellige sfeer, met talloze restaurants, sportscholen, winkels en supermarkten in de directe omgeving. 

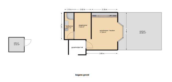
Indeling
Bij binnenkomst in de woning kom je eerst in de hal, die toegang geeft tot de lichte woonkamer met open keuken. De open keuken is voorzien van moderne inbouwapparatuur, zoals een inductiekookplaat, vaatwasser, combi oven-magnetron en koelkast. De woning beschikt verder over een slaapkamer. Vanuit de slaapkamer is de badkamer toegankelijk. Deze is modern en voorzien van een douche, wastafel en wastafelmeubel. Tevens is er een voortuin en schuur aanwezig.

Huurprijs
De huurprijs voor dit appartement bedraagt €1150,- per maand, inclusief een voorschot van €100 voor gas, water, elektriciteit, internet en televisie.

Vanwege het hoge aantal aanvragen kunnen we niet op iedereen reageren. Wij nodigen doorgaans circa 5 kandidaten uit voor een bezichtiging. We kunnen helaas niet iedereen persoonlijk beantwoorden of uitnodigingen.

Kenmerken